terrasse terrasse terrasse terrasse terrasse terrasse terrasse terrasse terrasse terrasse terrasse terrasse

TERRASSE PRIVÉE – PARIS

TERRASSE PRIVÉE – PARIS

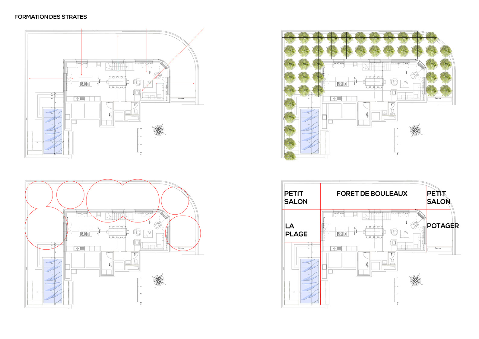
La terrasse située au 10e étage bénéficie d’une vue imprenable sur Paris. Elle est le prolongement de l’appartement avec ses espaces de vie, de réception et de promenade.

La palette végétale s’est constituée en associant une végétation arbustive structurante (buis, if, charme), juxtaposée avec une sélection d’arbres en cépée (plusieurs troncs). Cette association végétale mélange courbes et linéaires ainsi que couleurs et textures.

En face de l’escalier un Pin sylvestre taillé en nuage donne du volume à la terrasse par son architecture et sa forme.

La partie potagère, cuisine, espace enfants est séquencée par une succession de tables arbustives de différentes hauteurs, associant jeux de regards et intimité.

Des Jasmins étoilés sont installés contre les murs de l’appartement. Leurs feuillages persistants vert foncé deviennent bronze en automne. Leurs floraisons blanches de juin à août parfument l’ensemble de la terrasse.

Des assises en bois seront installées entre les buis et invitent ainsi à la contemplation.

Elles ont également la fonction de coffre ce qui permettra de ranger et stocker en toute discrétion.

Le rôle de la végétation est de créer une alcôve, un cocon intime. Elle protège, mais ouvre aussi le regard sur Paris.

Surface de la terrasse : 140 m2


MOA : Particulier

ÉQUIPE : Agence Keller, Wild Paysages 

LIEU : Paris

MISSION : Conception

SURFACE : 140 m2 

COÛT : 60 000

ANNÉE : 2016
Date

3 mars 2016

Category

Jardin, Terrasse